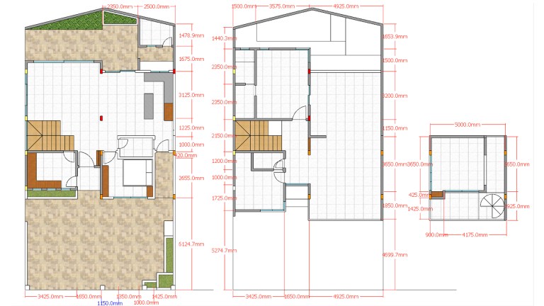
Today’s featured house is a double storey with five bedrooms. There are many advantages of building a two storey home. The most important one is that the block size is maximized and going upward means the opportunity for full viewing of the surroundings especially if you make balconies or roof decks.
Building a double story house depends on the size of your lot. If you have a small lot but you would want a big house for your big family and their stuffs, you can build a muti-level house. A double storey home only takes up less space on your block than a single storey home, maximising your block space. This is especially important if you are building on a small or narrow block of land. You can leave a backyard space for your children and guests and for some landscape or gardening.
Take the block size of this house for example. It does not have much and the only way to maximize the block size is by going upward, by building several levels rather than consuming all the space of the lot. A double storey home also provides more flexibility in terms of the layout of your home. Two storey homes allow for a separation of space, meaning that you can separate the master bedroom from the minor bedrooms, or place all of the sleeping areas on the top storey, away from the downstairs living areas.


Product Specifications:
- double-storey home
- five bedrooms
- 3 bathrooms
- 2 living rooms
- kitchen and dining
- sitout
- balcony
- garage
- Budget: USD 200,000 – 240,000 or Php10-12M


You may want to check our other websites, as well. You can click on the following hyperlinks and you will be redirected to the websites. There are many designs for you to choose from. Each design has its own unique features where you may get ideas from to build your own. If you like the design, please don’t forget to share on your wall for others to see. Sit back and enjoy. Visit us again soon. Thank you!
This design was taken from Samphoas.

Be the first to comment