If you have a bigger house, it is not only luxurious, it can also give you and your family members enough space to move around and to relax. When you have a bigger house, you have more freedom to customize it according to what you need and what you want.
For today, Pinoy House Plan’s house plan is a modern one-storey home. The highlight of this home is its three bedrooms, two toilet and baths, and the spacious living areas for the family.
This home also emphasizes its rectangular shape. Because of its size, it allows you to customize other parts of the house to fit your needs.
This house not only emphasizes its unique shape but also gives effort to the overall arrangement of the rooms.
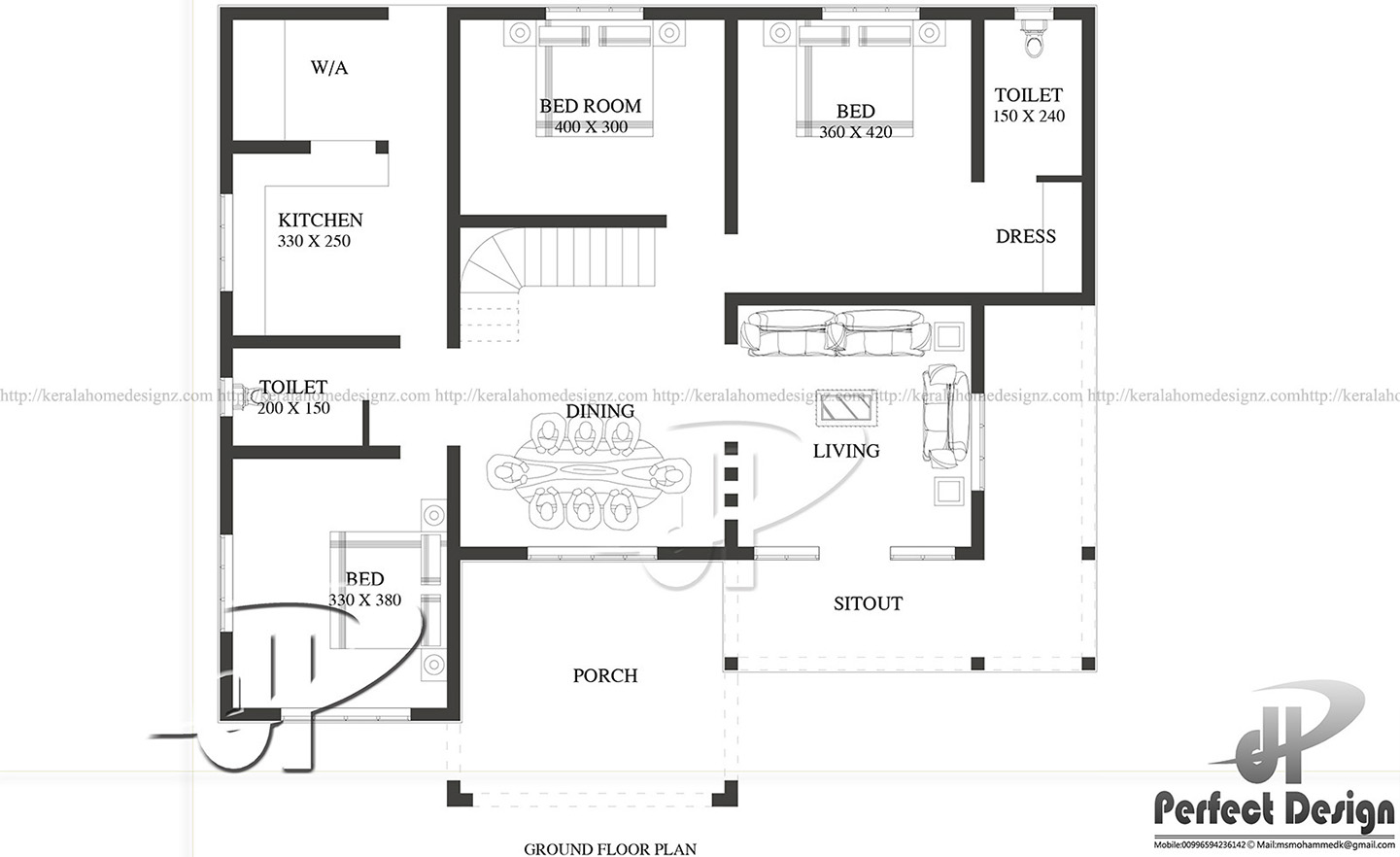
Let’s take a look at the inside of the house. Here is the floor plan of this modern home:
Upon entering the house from the sit out, you can immediately see the spacious living room which is attached to the dining hall. The kitchen has its own room that is directly connected to the working area which can serve as a pantry, a stock area, and a laundry room.
One of the bedrooms is situated on the ground floor while the other bedroom and the Master’s bedroom is on the first floor. The Master’s bedroom has an attached toilet and bath and a dressing area.
This house is designed to allow the homeowner to adjust the areas by themselves. This house has a huge balcony which can be converted to another bedroom. Walls can also be built around the porch to transform it into another bedroom for a family member.
What do you think about this fully customizable home? Do you think it is better? Let us know in the comment section below!

PLEASE SUBSCRIBE ME TO YOUR BLOG.